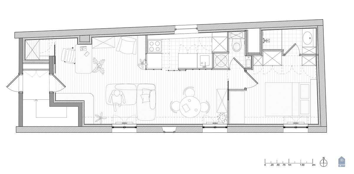
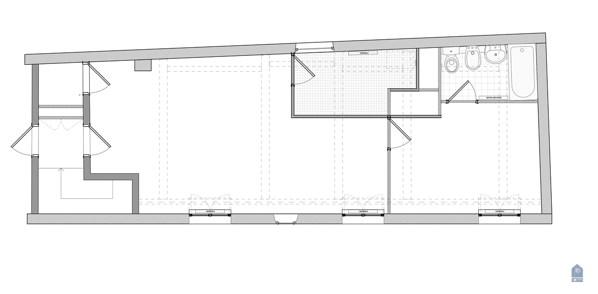
Rénovation d’un appartement parisien
Lieu : Paris (5éme)
Année : 2024 – chantier prévue pour 2026
Programme : Rénovation d’un appartement parisien
Maîtrise d’ouvrage : Privé
Surface : 40 m²
Mission : Complète
Budget travaux : 50 000 € HT
Lorem ipsum dolor sit amet, consectetur adipiscing elit. Praesent blandit dui vitae nulla lobortis, ac tempus erat ornare. Maecenas tristique ultricies egestas. Fusce sit amet nunc ut augue interdum porta. Nam maximus, ex et auctor laoreet, elit velit tempus neque, sed pharetra purus sapien ut orci. Nulla faucibus elit ultrices neque interdum lacinia. Mauris ut justo non enim semper accumsan. Etiam imperdiet mauris nec ipsum congue, eget mollis nisi sodales. Donec placerat scelerisque enim in suscipit. Cras faucibus ornare lectus, at condimentum odio faucibus ut. Curabitur condimentum nulla ultrices risus gravida, hendrerit vestibulum ex bibendum. Nunc blandit nibh id blandit iaculis.








